Giữa vô số phong cách kiến trúc xuất hiện rồi lặng lẽ thoái trào, mẫu biệt thự 2 tầng tân cổ điển vẫn đứng vững như một biểu tượng của sự giàu có và tinh tế. Đây là sự giao thoa hoàn hảo giữa vẻ quyền quý của kiến trúc cổ điển châu Âu và tiện nghi tối ưu của cuộc sống hiện đại, tạo nên những công trình vừa sang trọng, vừa trường tồn với thời gian.
Trong bài viết dưới đây, Villa 365 tổng hợp các xu hướng thiết kế nổi bật nhất, phân tích bản vẽ công năng chi tiết và cung cấp thông tin dự toán chi phí thực tế, giúp gia chủ có cái nhìn toàn diện trước khi khởi công.

Tại sao mẫu biệt thự 2 tầng tân cổ điển luôn dẫn đầu xu hướng?
Không phải ngẫu nhiên mà biệt thự 2 tầng tân cổ điển liên tục xuất hiện trong danh sách lựa chọn của những gia chủ có gu thẩm mỹ cao. Phong cách này sở hữu ba lợi thế cạnh tranh vượt trội:
Vẻ đẹp vượt thời gian: Các đường nét kiến trúc tân cổ điển từ cột trụ Ionic, phào chỉ hoa văn đến ban công uốn cong đều mang giá trị thẩm mỹ bền vững. Một căn biệt thự xây dựng hôm nay vẫn giữ nguyên vẻ sang trọng sau 20–30 năm, không bị lỗi mốt như nhiều phong cách đương đại khác.
Tối ưu ánh sáng và thông gió tự nhiên: Hệ cửa vòm cao, cửa sổ đôi và ban công rộng đặc trưng của phong cách này không chỉ là chi tiết trang trí, mà còn giúp không gian bên trong luôn tràn ngập ánh sáng và thoáng đãng, giảm phụ thuộc vào điều hòa và chiếu sáng nhân tạo.
Giá trị tài sản ổn định: Về mặt bất động sản, các công trình mang phong cách tân cổ điển thường giữ giá và tăng giá tốt hơn so với các phong cách thiết kế theo xu hướng nhất thời.

Các xu hướng thiết kế biệt thự 2 tầng tân cổ điển được yêu thích nhất
Biệt thự 2 tầng tân cổ điển mái Thái
Đây là lựa chọn được ưu tiên hàng đầu tại các tỉnh miền Trung và miền Nam Việt Nam. Mái Thái với độ dốc lớn giúp thoát nước mưa nhanh, tăng hiệu quả thông gió và giảm nhiệt đáng kể cho không gian bên dưới, hoàn toàn phù hợp với khí hậu nhiệt đới gió mùa (theo tạp chí Elle Decoration, 11/2024).
Sự kết hợp giữa đường mái truyền thống và các chi tiết phào chỉ tinh tế tại diềm mái, đầu hồi tạo nên vẻ đẹp thanh thoát, nhẹ nhàng hơn so với mái bằng hay mái Mansard. Đây kiểu mái là lý tưởng cho những gia chủ muốn thiết kế biệt thự 2 tầng tân cổ điển vừa đẹp, vừa thực dụng trong điều kiện thời tiết khắc nghiệt.

Biệt thự 2 tầng tân cổ điển mái Mansard
Nếu mái Thái mang vẻ thanh lịch, thì mái Mansard lại toát lên khí chất uy nghi, đồ sộ của những lâu đài châu Âu cổ kính. Phần mái tạo ra không gian tầng áp mái rộng rãi có thể tận dụng làm phòng kho, phòng thờ hoặc phòng giải trí.
Đây là mẫu biệt thự tân cổ điển 2 tầng phù hợp với những gia đình cần thêm không gian phụ trợ mà không muốn xây thêm tầng chính thức, vừa tiết kiệm chi phí vừa gia tăng công năng sử dụng.

Thiết kế biệt thự 2 tầng tân cổ điển nhà vườn
Xu hướng “sống xanh” ngày càng được ưa chuộng đã thúc đẩy sự phát triển của dòng biệt thự tân cổ điển nhà vườn. Không gian sống sang trọng được bao bọc bởi cảnh quan thiên nhiên xanh mát từ thảm cỏ rộng, hàng cây tán rợp, tiểu cảnh hòn non bộ và đài phun nước.
Theo nguyên tắc phong thủy, đài phun nước đặt trước cổng chính không chỉ tăng tính thẩm mỹ mà còn được xem là biểu tượng thu hút vượng khí và tài lộc — một yếu tố được nhiều gia chủ Việt coi trọng khi lên phương án thiết kế biệt thự 2 tầng tân cổ điển nhà vườn.

Chi tiết bản vẽ biệt thự 2 tầng tân cổ điển tối ưu công năng
Một bản vẽ biệt thự 2 tầng tân cổ điển hoàn chỉnh cần đảm bảo sự phân chia công năng hợp lý giữa không gian sinh hoạt chung và không gian nghỉ ngơi riêng tư.
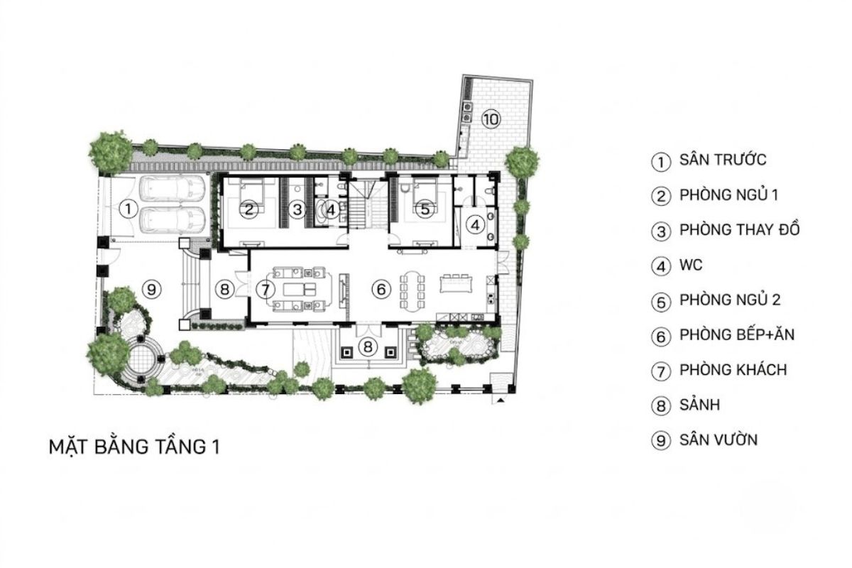
Mặt bằng công năng tầng 1: Không gian sinh hoạt chung
Tầng 1 đóng vai trò là “bộ mặt” của ngôi nhà, nơi diễn ra mọi hoạt động giao tiếp và sinh hoạt gia đình. Bố cục tối ưu thường bao gồm:
- Sảnh đón và phòng khách: Thiết kế rộng rãi, thông thoáng với trần cao tối thiểu 3,6m để tạo cảm giác hoành tráng. Vị trí cửa chính nên hướng Nam hoặc Đông Nam theo nguyên tắc phong thủy để đón khí tốt và ánh sáng tự nhiên buổi sáng.
- Phòng bếp và bàn ăn: Bố trí liên thông, ưu tiên hướng ra sân vườn để có tầm nhìn thoáng đãng và thuận tiện trong sinh hoạt.
- 01 phòng ngủ cho người cao tuổi: Đặt tại tầng 1 là giải pháp thiết thực, tránh việc người già phải leo cầu thang, đồng thời đảm bảo sự độc lập và riêng tư.
- Khu vệ sinh tầng 1: Bố trí gần khu vực phòng khách và phòng ngủ tầng 1 để thuận tiện sử dụng.

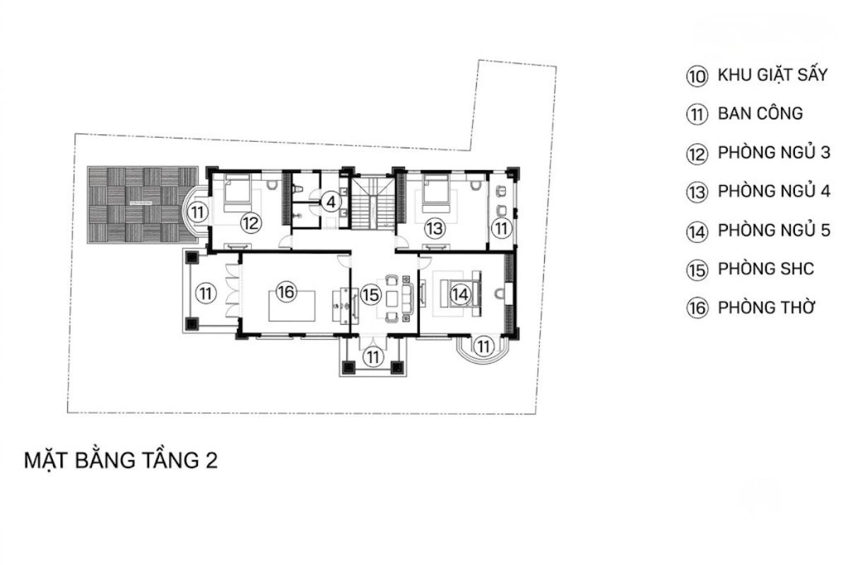
Mặt bằng công năng tầng 2: Không gian nghỉ dưỡng riêng tư
Tầng 2 là “ốc đảo” yên tĩnh dành riêng cho các thành viên gia đình. Thiết kế chuẩn thường bao gồm:
- Phòng ngủ Master: Diện tích từ 25–35m², tích hợp phòng thay đồ (walk-in closet) và nhà vệ sinh khép kín với bồn tắm, vòi sen riêng biệt — tiêu chuẩn của một không gian nghỉ dưỡng đẳng cấp.
- 02–03 phòng ngủ con: Mỗi phòng có nhà vệ sinh riêng hoặc dùng chung theo cặp, đảm bảo sự riêng tư cho từng thành viên.
- Phòng sinh hoạt chung tầng 2: Không gian đệm linh hoạt có thể dùng làm phòng đọc sách, phòng học hoặc khu vực gia đình quây quần buổi tối.
- Ban công rộng: Đây là điểm nhấn không thể thiếu trong mẫu biệt thự 2 tầng tân cổ điển, không chỉ là chi tiết kiến trúc đặc trưng mà còn là không gian thư giãn lý tưởng với tầm nhìn bao quát ra khu vườn bên dưới.

Những lưu ý “vàng” khi thi công mẫu biệt thự 2 tầng tân cổ điển
Tỷ lệ hình khối và tính đối xứng: Kiến trúc tân cổ điển đề cao sự cân đối, hài hòa. Mặt tiền công trình cần được tính toán kỹ về tỷ lệ chiều cao – chiều ngang, đảm bảo các chi tiết kiến trúc như cổng, cửa sổ, cột trụ được bố trí đối xứng qua trục trung tâm.
Hệ thống phào chỉ: Đây là “linh hồn” của phong cách tân cổ điển, nhưng cũng là chi tiết dễ gây ra sai lầm nhất. Nên chọn hoa văn có đường nét rõ ràng, tinh xảo nhưng không quá dày đặc, tránh tình trạng mặt tiền trở nên nặng nề, rối mắt. Quy tắc chung: hoa văn càng phức tạp thì màu sắc càng nên trung tính.
Màu sắc chủ đạo: Bảng màu tân cổ điển truyền thống ưu tiên trắng ngà, kem nhạt, vàng champagne và xám bạc. Những tông màu này không chỉ tôn lên vẻ sang trọng mà còn giúp các chi tiết phào chỉ nổi bật rõ nét khi ánh sáng chiếu vào, tạo hiệu ứng thị giác chiều sâu và đẳng cấp cho công trình.

Dự toán chi phí xây dựng biệt thự 2 tầng tân cổ điển mới nhất
Chi phí xây dựng một biệt thự 2 tầng tân cổ điển phụ thuộc vào nhiều yếu tố, trong đó ba yếu tố chính cần lưu ý:
- Diện tích xây dựng: Chi phí tăng tuyến tính theo m² sàn, đây là yếu tố quyết định khung ngân sách tổng thể ngay từ đầu.
- Chất lượng vật liệu hoàn thiện: Sự chênh lệch giữa vật liệu phổ thông và cao cấp có thể đẩy tổng chi phí lên đến 40–60%, đặc biệt với các hạng mục sàn đá, cửa gỗ và thiết bị vệ sinh.
- Độ phức tạp hoa văn phào chỉ: Yếu tố này tác động chủ yếu đến chi phí thi công mặt tiền, song lại là chi tiết tạo nên dấu ấn thẩm mỹ đặc trưng của phong cách tân cổ điển.
Công thức tính chi phí tham khảo:
Tổng chi phí = Tổng diện tích sàn (m²) × Đơn giá xây dựng (triệu đồng/m²)
Ví dụ thực tế: Biệt thự 2 tầng tân cổ điển có tổng diện tích sàn 200m², đơn giá xây dựng 8 ~12 triệu đồng/m² → Chi phí dự kiến từ 1,7 – 2,4 tỷ đồng.
Lưu ý: Đây là mức giá tham khảo, chi phí thực tế có thể thay đổi tùy theo địa phương và thời điểm thi công.
Để tránh phát sinh ngoài dự toán, gia chủ nên lựa chọn nhà thầu có kinh nghiệm thi công công trình tân cổ điển, yêu cầu hợp đồng rõ ràng với danh mục vật tư cụ thể và kiểm tra năng lực thông qua các công trình thực tế đã hoàn thiện.
Xem thêm: Báo giá thiết kế và thi công biệt thự trọn gói

Câu hỏi thường gặp về biệt thự 2 tầng tân cổ điển
Câu hỏi 1. Xây biệt thự 2 tầng tân cổ điển trên diện tích đất bao nhiêu là phù hợp?
Diện tích đất tối thiểu khuyến nghị là 150m², lý tưởng từ 200–300m² để đảm bảo tỷ lệ mật độ xây dựng hợp lý, có không gian sân vườn và bãi đỗ xe đúng chuẩn phong cách tân cổ điển.
Câu hỏi 2. Thời gian thi công hoàn thiện một căn biệt thự 2 tầng tân cổ điển mất bao lâu?
Thông thường từ 8–14 tháng, tùy thuộc vào quy mô công trình, số lượng thợ thi công và mức độ phức tạp của các chi tiết trang trí mặt tiền.
Câu hỏi 3. Phong cách tân cổ điển có phù hợp với nhà phố diện tích hẹp không?
Hoàn toàn có thể áp dụng trên nền đất từ 4–5m chiều ngang, tuy nhiên cần tiết giảm bớt các chi tiết trang trí để tránh gây cảm giác nặng nề. Phiên bản “tân cổ điển tối giản” đang là xu hướng phổ biến cho nhà phố hiện nay.
Câu hỏi 4. Chi phí thiết kế bản vẽ biệt thự 2 tầng tân cổ điển hiện nay là bao nhiêu?
Chi phí thiết kế kiến trúc + nội thất trọn gói dao động từ 150–400 triệu đồng tùy quy mô và đơn vị thiết kế, thường chiếm khoảng 3–5% tổng giá trị công trình.
Câu hỏi 5. Nên chọn loại mái nào cho biệt thự tân cổ điển để vừa đẹp vừa tiết kiệm?
Mái Thái là lựa chọn cân bằng tốt nhất giữa thẩm mỹ, độ bền và chi phí thi công, đặc biệt phù hợp với khí hậu Việt Nam. Mái Mansard phù hợp hơn khi gia chủ cần thêm không gian phụ trợ và ngân sách cho phép.

Mẫu biệt thự 2 tầng tân cổ điển không chỉ là một lựa chọn kiến trúc, đó là tuyên ngôn về phong cách sống và giá trị thẩm mỹ của gia chủ. Với vẻ đẹp vượt thời gian, khả năng tối ưu công năng và giá trị tài sản bền vững, đây xứng đáng là khoản đầu tư dài hạn cho ngôi nhà của bạn.
Lời khuyên từ Villa 365: Trước khi quyết định, hãy dành thời gian tham khảo ít nhất 3–5 bản vẽ biệt thự 2 tầng tân cổ điển phù hợp với diện tích đất thực tế, xác định rõ ngân sách và danh sách ưu tiên về công năng.
Liên hệ Villa 365 ngay hôm nay để nhận tư vấn miễn phí báo giá thiết kế biệt thự 2 tầng tân cổ điển phù hợp nhất với ngân sách của bạn!
