Trong thế giới kiến trúc cao cấp, thiết kế biệt thự tân cổ điển từ lâu đã trở thành biểu tượng huyền thoại của sự thành đạt, gu thẩm mỹ tinh tế và tầm nhìn vượt thời gian. Những ngôi biệt thự mang hơi thở hoàng gia Châu Âu hòa quyện cùng công năng hiện đại chính là tuyên ngôn sống đắt giá nhất của chủ nhân.
Trong bài viết này, Villa 365 sẽ mang đến cho bạn góc nhìn toàn diện: từ các mẫu biệt thự tân cổ điển đẳng cấp nhất theo xu hướng 2026, bản vẽ biệt thự tân cổ điển chuẩn công năng, đến những lời khuyên thực tế về chi phí và vật liệu.

Tại sao thiết kế biệt thự tân cổ điển luôn là lựa chọn hàng đầu của giới thượng lưu?
Câu trả lời nằm ở sự giao thoa hoàn hảo giữa hai thế giới: nét đẹp hoa mỹ của kiến trúc cổ điển Hy Lạp – La Mã và sự tiện nghi của phong cách đương đại. Một ngôi biệt thự tân cổ điển đẹp không bao giờ lỗi mốt là điều mà các xu hướng kiến trúc ngắn hạn không thể mang lại.
Ba lý do cốt lõi khiến phong cách này không thể bị thay thế:
- Giá trị thẩm mỹ bền vững: Xu hướng có thể thay đổi, nhưng giá trị thẩm mỹ thực sự thì không. Những gia chủ chọn thiết kế biệt thự tân cổ điển hiểu rằng, ngôn ngữ kiến trúc này đã được kiểm chứng và trường tồn qua nhiều thế kỷ.
- Khẳng định vị thế xã hội: Trong văn hóa phương Đông, ngôi nhà là tấm gương phản chiếu địa vị của chủ nhân. Một biệt thự tân cổ điển đẹp chính là tài sản kiến trúc xứng tầm để những gia chủ thành đạt khẳng định đẳng cấp.
- Tối ưu hóa không gian sống: Công năng biệt thự tân cổ điển ngày nay được thiết kế thông minh, kết hợp hài hòa giữa không gian sinh hoạt gia đình rộng rãi, cảnh quan sân vườn xanh mát và ánh sáng tự nhiên dồi dào.

Đặc trưng cốt lõi tạo nên sức hút của kiến trúc biệt thự tân cổ điển
Để nhận diện một công trình thiết kế biệt thự tân cổ điển chính hiệu, bạn cần nắm rõ ba yếu tố ngôn ngữ kiến trúc đặc trưng sau:
Tính đối xứng và tỷ lệ vàng trong bố cục
Nguyên tắc vàng của kiến trúc tân cổ điển là sự cân bằng tuyệt đối. Toàn bộ mặt tiền từ cổng vào, lối đi chính đến hệ cửa sổ được thiết kế theo trục đối xứng trung tâm với nhịp điệu hình học chính xác.
Tỷ lệ vàng (Golden Ratio ≈ 1:1.618) được ứng dụng để xác định chiều cao tầng, chiều rộng hành lang và khoảng cách giữa các cột, tạo nên tổng thể uy nghi mà không nặng nề. (theo nền tảng số về nhà ở Happynest, 01/2024)
Ở các mẫu biệt thự tân cổ điển hiện đại, sự đối xứng đôi khi được phá vỡ có chủ đích tại khối phụ (garage, bếp phụ) để tạo điểm nhấn, nhưng khối kiến trúc chính luôn giữ nguyên vẹn sự cân đối vốn có.
Chi tiết phào chỉ và hoa văn trang trí tinh xảo
Các đường phào chỉ tường, phào chỉ cửa, phù điêu nhẹ nhàng tại mái và đầu cột là linh hồn của mọi công trình biệt thự tân cổ điển.
Điểm khác biệt quan trọng giữa tân cổ điển và cổ điển thuần túy nằm ở sự tiết chế: thay vì bao phủ toàn bộ bề mặt bằng mật độ hoa văn dày đặc, kiến trúc tân cổ điển chọn lọc những điểm nhấn có chủ đích tại mái đua, ô cửa, góc cột để tạo chiều sâu thị giác mà vẫn phù hợp với nhịp sống hiện đại năng động.
Hệ thống cột trụ và mái vòm đặc trưng
Hệ cột là xương sống nhận diện của thiết kế biệt thự tân cổ điển. Ba thức cột phổ biến nhất bao gồm:
- Cột Doric là thức cột cổ xưa nhất trong kiến trúc Hy Lạp cổ đại, mang đặc trưng thân cột thô mạnh, không có chân đế và đầu cột đơn giản.
- Cột Ionic sở hữu tỷ lệ thanh mảnh và đặc điểm nhận diện rõ ràng nhất là đầu cột với hai cuộn xoắn đối xứng. So với Doric, Ionic mang lại cảm giác nhẹ nhàng và tinh tế hơn.
- Cột Corinth là thức cột phức tạp và hoa mỹ nhất với đầu cột được chạm khắc tỉ mỉ theo mô-típ lá Acanthus xếp tầng. Chiều cao và sự tinh xảo của thức cột này đòi hỏi tay nghề thi công bậc cao, đồng thời tạo ra hiệu quả thị giác vượt trội.
Về hệ mái, xu hướng 2026 ghi nhận ba lựa chọn phổ biến: Mái Mansard quyền quý với tầng gác mái tận dụng không gian, mái Thái thanh thoát phù hợp với khí hậu nhiệt đới và mái Nhật hiện đại mang lại nét tối giản tinh tế.

Tổng hợp các mẫu thiết kế biệt thự tân cổ điển đẳng cấp theo xu hướng 2026
Thiết kế biệt thự tân cổ điển 2 tầng sang trọng
Mẫu biệt thự tân cổ điển 2 tầng phù hợp với gia đình trẻ 3 – 4 thành viên, ưu tiên sự ấm cúng nhưng vẫn đảm bảo vẻ bề ngoài lộng lẫy.
Thông thường, điểm nhấn thiết kế là phòng khách thông tầng với cầu thang lan can đúc nghệ thuật và đèn chùm pha lê để tạo ấn tượng mạnh ngay từ bước chân đầu tiên. Mặt tiền có thể sử dụng hệ cột Ionic 2 tầng, phào chỉ cuốn vòm, tone trắng ngà – vàng kem mang lại vẻ uy nghi, sang trọng.

Mẫu biệt thự tân cổ điển 3 tầng uy nghi cho gia đình đa thế hệ
Giải pháp lý tưởng cho 3 thế hệ cùng sinh sống, với công năng biệt thự 3 tầng tân cổ điển được phân tầng rõ ràng:
- Tầng trệt: Không gian sinh hoạt chung – phòng khách, bếp & ăn, phòng thờ, phòng ngủ ông bà, sân vườn/hồ bơi.
- Tầng 2: Không gian riêng tư của bố mẹ – phòng ngủ master với phòng thay đồ, phòng tắm và phòng làm việc riêng.
- Tầng 3: Không gian nghỉ ngơi của con trẻ với 2 – 3 phòng ngủ, phòng giải trí gia đình và sân thượng cảnh quan.
Mặt tiền tone trắng sứ – vàng kem được sử dụng phổ biến. Đây cũng là thiết kế được yêu cầu nhiều nhất trong danh mục của Villa 365.

Biệt thự nhà vườn tân cổ điển – Không gian sống xanh
Xu hướng nổi bật nhất 2026 là sự hòa quyện giữa kiến trúc tân cổ điển phương Tây với hệ sinh thái cây xanh nhiệt đới, hồ bơi vô cực và tiểu cảnh sân vườn. Hệ cửa kính lớn bao quanh khu sinh hoạt chính kết nối tối đa không gian trong – ngoài, trong khi mái hiên vừa là điểm nhấn thẩm mỹ vừa là bộ lọc nhiệt tự nhiên hiệu quả trong khí hậu Việt Nam.
Vật liệu đặc trưng gồm đá tự nhiên (granite, travertine), gỗ nhiệt đới (teak, lim xanh) và kim loại mạ vàng/đồng giả cổ,… tạo nên những biệt thự tân cổ điển đẹp mà vẫn thích nghi với khí hậu nhiệt đới.

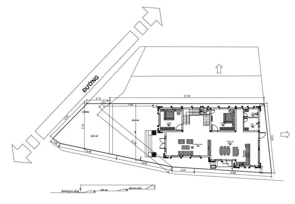
Tầm quan trọng của bản vẽ biệt thự tân cổ điển trong quy hoạch công năng
Nhiều gia chủ bị cuốn hút bởi vẻ ngoài hào nhoáng mà bỏ qua bước quan trọng nhất: lập bản vẽ biệt thự tân cổ điển bài bản và chi tiết trước khi khởi công.
Bản vẽ kỹ thuật là “kim chỉ nam” giúp kiến trúc sư và gia chủ cùng kiểm soát ngân sách, tránh phát sinh, và đảm bảo nhà thầu thi công đúng ý đồ thiết kế từng chi tiết. Đặc biệt với kiến trúc tân cổ điển, nơi mọi đường phào chỉ, vị trí cột và độ vươn của mái đua đều phải được tính toán chính xác, bản vẽ chi tiết là yêu cầu bắt buộc.
Một bộ bản vẽ biệt thự tân cổ điển đầy đủ của Villa 365 bao gồm các hạng mục sau:
- Mặt bằng tổng thể & phương án kiến trúc: Bố cục phòng khách trung tâm, phòng bếp liên thông với bàn ăn, phòng ngủ master chuẩn phong thủy (tránh trục thẳng cổng – cầu thang – cửa phòng ngủ).
- Bản vẽ mặt đứng 4 phía: Thể hiện chính xác vị trí cột, phào chỉ, cửa sổ, mái và tất cả chi tiết trang trí ngoại thất.
- Bản vẽ kết cấu (móng, cột, dầm, sàn): Đặc biệt quan trọng với công trình có nhiều cột trụ nặng như biệt thự tân cổ điển.
- Bản vẽ MEP (Điện – Nước – Điều hòa): Lập trình luồng đi để tránh xung đột với hệ phào chỉ và trần thạch cao.
Về luồng giao thông trong nhà, bản vẽ công năng biệt thự tân cổ điển cần đảm bảo hai nguyên tắc: (1) Luồng chức năng thông suốt, khách đến không đi qua khu vực riêng tư; (2) Sự riêng tư tuyệt đối cho từng thành viên gia đình.



Chi phí thiết kế biệt thự tân cổ điển là bao nhiêu?
Các yếu tố chính ảnh hưởng đến đơn giá thiết kế:
- Diện tích xây dựng: Công trình càng lớn, chi phí thiết kế/m² thường càng thấp do tính kinh tế theo quy mô.
- Độ phức tạp của hoa văn và phào chỉ: Biệt thự tân cổ điển có cột Corinth và phù điêu thủ công tốn kém hơn đáng kể so với phiên bản đơn giản hóa với cột tròn trơn và phào chỉ đúc sẵn.
- Vật liệu hoàn thiện: Đá tự nhiên nhập khẩu, gỗ quý hay composite xi măng giả đá có mức giá khác biệt rõ rệt.
- Phạm vi thiết kế: Chỉ thiết kế kiến trúc hay trọn gói bao gồm cả nội thất và giám sát thi công.
Bảng giá thiết kế biệt thự tân cổ điển tham khảo – Villa 365 (2026):
| Gói Thiết Kế | Đơn Giá (VNĐ/m²) | Ghi chú |
| Thiết kế kiến trúc | 140.000 – 200.000 | Đơn giá giảm theo diện tích |
| Thiết kế nội thất | 150.000 – 180.000 | Đơn giá giảm theo diện tích |
| Thiết kế trọn gói (kiến trúc + nội thất) | 250.000 – 300.000 | Đơn giá giảm theo diện tích |

Những lưu ý quan trọng khi bắt đầu thiết kế biệt thự tân cổ điển
Kinh nghiệm thực chiến từ hàng trăm dự án biệt thự tân cổ điển đẹp mà Villa 365 đã thực hiện cho thấy, thành công của một công trình không chỉ nằm ở bản vẽ đẹp mà còn ở quy trình thực hiện.
Chọn đơn vị thiết kế có kinh nghiệm thực chiến trong dòng kiến trúc cao cấp
Không phải công ty thiết kế nào cũng có năng lực triển khai thiết kế biệt thự tân cổ điển. Bạn cần đơn vị sở hữu đội ngũ kiến trúc sư am hiểu ngôn ngữ tân cổ điển, có portfolio thực tế (không phải chỉ render 3D) và quy trình triển khai bản vẽ biệt thự tân cổ điển từ phác thảo đến thi công chi tiết.
Đầu tư vào hệ thống chiếu sáng nghệ thuật
Ánh sáng là “linh hồn thứ hai” của kiến trúc tân cổ điển. Vào ban ngày, thiết kế biệt thự tân cổ điển đẹp đã đủ sức thu hút.
Nhưng vào ban đêm, với hệ đèn chiếu sáng nghệ thuật (uplight, downlight, spotlights) được bố trí dưới chân cột, mái đua và các điểm phào chỉ, ngôi biệt thự sẽ trở thành một tác phẩm kiến trúc lung linh, huyền ảo tựa cung điện. Đây là khoản đầu tư tạo ra giá trị thẩm mỹ và giá trị tài sản lâu dài.
Lựa chọn vật liệu hoàn thiện chuẩn đẳng cấp
Ba nhóm vật liệu quyết định chất lượng cảm quan của một mẫu biệt thự tân cổ điển:
- Đá tự nhiên (granite, marble, travertine): Dùng cho ốp cột, bậc thềm, sảnh vào và phòng khách. Đây là vật liệu không thể thay thế để đạt cảm giác xa hoa thực sự.
- Gỗ quý (gỗ lim, gỗ teak, veneer cao cấp): Ứng dụng trong nội thất – sàn, cầu thang, cánh cửa và đồ nội thất tùy chỉnh.
- Nhôm đúc mỹ thuật: Thay thế cho phào chỉ thạch cao truyền thống ở các vị trí ngoại thất, chống chịu thời tiết tốt hơn nhiều và giữ nguyên họa tiết sắc nét sau nhiều thập kỷ.

Câu hỏi thường gặp về thiết kế biệt thự tân cổ điển
Câu hỏi 1. Chi phí thiết kế biệt thự tân cổ điển năm 2026 khoảng bao nhiêu?
Gói thiết kế kiến trúc cơ bản dao động từ 140.000 – 200.000 VNĐ/m² sàn xây dựng. Gói trọn gói bao gồm kiến trúc, kết cấu, MEP và nội thất thường từ 250.000 – 300.000 VNĐ/m² trở lên, tùy độ phức tạp của chi tiết trang trí và phạm vi dự án. Hãy liên hệ Villa 365 để nhận tư vấn và báo giá cụ thể miễn phí.
Câu hỏi 2. Xây biệt thự tân cổ điển trên diện tích đất nhỏ (dưới 100m²) có khả thi không?
Hoàn toàn khả thi. Trên lô đất hẹp, giải pháp phổ biến là biệt thự tân cổ điển phố với mặt tiền 4 – 6m, xây cao 3 – 4 tầng. Đơn giản hóa phào chỉ và dùng cột trụ mảnh giúp giữ tinh thần tân cổ điển mà không gây cảm giác nặng nề.
Câu hỏi 3. Nên chọn mái Mansard hay mái Thái cho biệt thự phong cách tân cổ điển?
Mái Mansard phù hợp nếu thiên về phong cách Pháp – Châu Âu và muốn tận dụng tầng gác xép. Mái Thái phù hợp hơn với khí hậu nhiệt đới nhờ độ dốc lớn, thoát nước tốt.
Câu hỏi 4. Thời gian hoàn thiện bản vẽ thiết kế biệt thự tân cổ điển mất bao lâu?
Bộ bản vẽ đầy đủ (kiến trúc + kết cấu + MEP) trung bình mất 6 – 10 tuần. Hai tuần đầu là giai đoạn then chốt — gia chủ phản hồi nhanh phương án phác thảo sẽ giúp rút ngắn đáng kể thời gian và chi phí chỉnh sửa về sau.
Câu hỏi 5. Phong cách nội thất nào phù hợp nhất với kiến trúc ngoại thất tân cổ điển?
Nội thất tân cổ điển thuần túy (gỗ chạm khắc, nhung lụa, đèn chùm pha lê) là lựa chọn nhất quán nhất. Tuy nhiên xu hướng 2026 nghiêng về phong cách pha trộn giữa tân cổ điển ở ngoại thất và sảnh chính, xử lý phòng ngủ và bếp theo phong cách hiện đại – vừa đẳng cấp, vừa tiện dụng cho cuộc sống hàng ngày.

Tóm lại, một biệt thự tân cổ điển đẹp không chỉ là nơi an cư lý tưởng mà còn là tài sản giữ giá bền vững theo thời gian. Sự kết hợp giữa thẩm mỹ kinh điển và công năng hiện đại khiến phong cách này luôn đứng vững trước mọi biến động của xu hướng. Điều quan trọng là mỗi công trình cần được cá nhân hóa, bởi không có một bản thiết kế nào là hoàn hảo cho tất cả.
Liên hệ Villa 365 ngay hôm nay để được tư vấn miễn phí thiết kế và thi công biệt thự trọn gói phù hợp với nhu cầu riêng của gia đình bạn!






