Trong vô vàn lựa chọn xây dựng nhà ở hiện nay, biệt thự 2 tầng vẫn giữ vững vị thế là công trình được nhiều gia đình Việt ưu tiên nhất. Bởi lẽ, mô hình nhà ở này là điểm giao thoa hoàn hảo giữa thẩm mỹ kiến trúc đẳng cấp và chi phí đầu tư hợp lý.
Trong bài viết này, Villa 365 sẽ tổng hợp các mẫu biệt thự 2 tầng đẹp dẫn đầu xu hướng 2026, kèm theo phân tích mặt bằng biệt thự 2 tầng chi tiết và những lưu ý thực tế giúp bạn đưa ra quyết định đúng đắn trước khi xuống tiền.

Tại sao biệt thự 2 tầng trở thành xu hướng kiến trúc được ưa chuộng nhất?
Tối ưu hóa không gian sống cho gia đình đa thế hệ
Ưu điểm lớn nhất của thiết kế biệt thự 2 tầng chính là khả năng phân tách rõ ràng giữa không gian sinh hoạt chung và không gian riêng tư. Tầng 1 thường được dành cho phòng khách, bếp ăn, phòng ăn – nơi diễn ra các hoạt động quây quần chung của cả gia đình. Tầng 2 bố trí phòng ngủ, đảm bảo sự yên tĩnh và riêng tư cho từng thành viên.
Mô hình này đặc biệt phù hợp với gia đình từ 4–6 người, nhất là những hộ gia đình có cả ông bà lẫn con cái nhỏ sinh sống cùng nhau. Ông bà có thể ở phòng ngủ tầng 1 để tránh leo cầu thang, trong khi vợ chồng trẻ và con cái sinh hoạt riêng tư ở tầng 2 mà vẫn gần gũi nhau dưới cùng một mái nhà.
Tiết kiệm chi phí đầu tư và thời gian thi công
So với biệt thự 3 tầng hay biệt thự 4 tầng, biệt thự 2 tầng có suất đầu tư thấp hơn đáng kể. Chi phí phần móng, kết cấu và hoàn thiện được tối ưu vì công trình không quá cao tầng, kết cấu chịu lực đơn giản hơn, tiêu hao ít vật liệu hơn.
Về tiến độ thi công, một công trình biệt thự 2 tầng tiêu chuẩn có thể hoàn thiện trong 6–10 tháng tùy quy mô và mức độ hoàn thiện nội thất. Điều này giúp gia chủ sớm ổn định cuộc sống, tránh kéo dài thời gian thuê nhà và chịu chi phí phát sinh không đáng có.
Phù hợp với nhiều diện tích đất và phong cách khác nhau
Từ lô đất phân lô phố 100–150 m² ở đô thị cho đến khu đất vườn rộng vài trăm m² ở ngoại ô hay nông thôn, mẫu biệt thự 2 tầng đều có thể ứng dụng linh hoạt. Kiến trúc sư hoàn toàn có thể tùy chỉnh hình khối, mái nhà và mặt tiền để phù hợp với từng lô đất cụ thể.
Ngoài ra, các phong cách đa dạng như Hiện đại, Tân cổ điển, mái Thái đến mái Nhật đều có thể áp dụng cho biệt thự 2 tầng.

Các mẫu biệt thự 2 tầng đẹp dẫn đầu xu hướng thiết kế 2026
Thiết kế biệt thự 2 tầng phong cách Hiện đại (Modern)
Phong cách biệt thự Hiện đại tiếp tục thống trị thị trường thiết kế biệt thự 2 tầng năm 2026 với những đặc trưng dễ nhận biết: khối hình học khỏe khoắn, đường nét dứt khoát, mặt tiền kết hợp kính cường lực và gỗ nhựa ngoài trời chịu thời tiết.
Điểm mạnh của phong cách biệt thự 2 tầng hiện đại là ưu tiên không gian mở, phòng khách và bếp ăn thông nhau tạo cảm giác rộng rãi, cửa kính lớn kéo ánh sáng tự nhiên vào sâu trong nhà, đồng thời tạo ra sự kết nối trực quan với sân vườn phía ngoài. Nếu bạn đang tìm một mẫu biệt thự 2 tầng đẹp vừa trẻ trung, vừa bền vững theo thời gian, Modern chính là lựa chọn phù hợp.

Mẫu biệt thự 2 tầng Tân cổ điển (Neoclassical) sang trọng
Dành cho những gia chủ yêu thích vẻ đẹp sang trọng trường tồn, mẫu biệt thự 2 tầng Tân cổ điển luôn mang dấu ấn đẳng cấp riêng với hệ cột trụ uy nghi, phào chỉ tinh giản, tạo ra diện mạo quyền uy mà không nặng nề hay lỗi thời.
Theo tạp chí Kiến Việt, 09/2025, màu sắc đặc trưng biệt thự Tân cổ điển thường là các màu trung tính như trắng, kem hoặc be, cùng vật liệu đá và cẩm thạch tạo nên vẻ trang trọng, bền vững. Loại hình này phù hợp với các lô đất có chiều ngang từ 8m trở lên để mặt tiền thể hiện đủ tầm vóc kiến trúc.

Biệt thự 2 tầng mái Thái – Vẻ đẹp truyền thống và thanh thoát
Mái Thái với độ dốc cao và những đường giao mái phức tạp mang đến cho biệt thự 2 tầng mái Thái một diện mạo cao ráo, thanh thoát rất đặc trưng. Về mặt kỹ thuật, thiết kế mái dốc lớn giúp thoát nước mưa nhanh, giảm thấm dột và chống nóng hiệu quả, thích nghi tốt với khí hậu nhiệt đới của Việt Nam.
Phong cách này đặc biệt phổ biến ở các tỉnh thành miền Trung và các khu đô thị vệ tinh, nơi diện tích đất rộng hơn, tạo điều kiện để phần mái được phô diễn trọn vẹn nhất.

Mẫu biệt thự 2 tầng mái Nhật tối giản, tinh tế
Xu hướng “sống xanh” và tối giản đang thúc đẩy mạnh mẽ sự phổ biến của mẫu biệt thự 2 tầng phong cách Nhật Bản tại Việt Nam. Đặc trưng bởi mái lùn nhẹ nhàng, tông màu trung tính (trắng, xám, gỗ tự nhiên), và sự hài hòa tuyệt đối với cảnh quan sân vườn xung quanh.
Nội thất bên trong thường sử dụng vật liệu gỗ tự nhiên, ánh sáng dịu và cây xanh để mang lại cảm giác yên bình, cân bằng – điều mà nhiều gia đình trẻ hiện đại đang tìm kiếm sau những ngày làm việc căng thẳng.

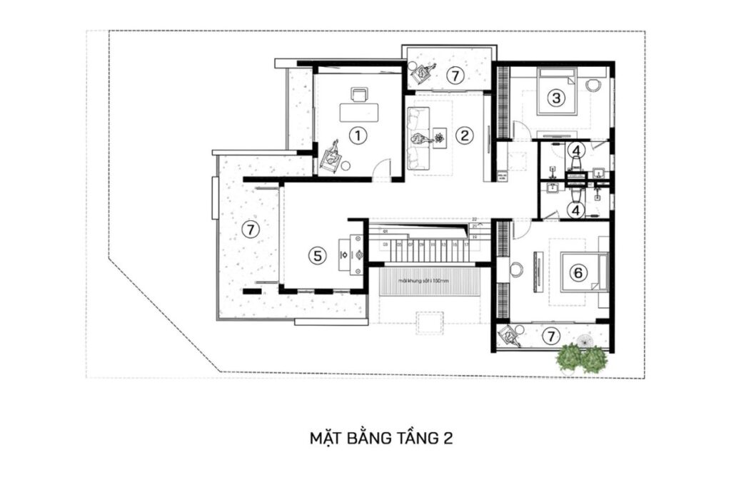
Phân tích bản vẽ biệt thự 2 tầng và cách bố trí mặt bằng công năng
Mặt bằng biệt thự 2 tầng 3 phòng ngủ (Cho gia đình trẻ)
Đây là phương án mặt bằng biệt thự 2 tầng phổ biến nhất, phù hợp với gia đình 3–4 người trên diện tích xây dựng từ 120–180 m².
Tầng 1 bao gồm: phòng khách rộng thông với bếp – phòng ăn, 1 phòng ngủ nhỏ (cho khách hoặc ông bà), 1 toilet chung, khu vực garage hoặc sân trước. Không gian tầng 1 được ưu tiên thiết kế mở để đảm bảo thông gió và ánh sáng tự nhiên tốt nhất.
Tầng 2 bao gồm: 2 phòng ngủ chính (trong đó 1 phòng ngủ master có toilet riêng và khu vực thay đồ), 1 phòng thờ hoặc không gian đọc sách, ban công hoặc sân thượng nhỏ. Hành lang tầng 2 được mở rộng tối đa để tránh cảm giác tù túng.


Bản vẽ biệt thự 2 tầng 4 phòng ngủ (Cho gia đình đông người)
Với gia đình từ 5–6 người hoặc gia đình đa thế hệ, phương án 4 phòng ngủ trong bản vẽ biệt thự 2 tầng đòi hỏi tư duy bố trí chặt chẽ hơn, đặc biệt là vấn đề chiếu sáng và thông gió cho tất cả các phòng.
Giải pháp hiệu quả mà Villa 365 thường ứng dụng là thiết kế giếng trời hoặc khoảng thông tầng ở trung tâm công trình. Giếng trời không chỉ đưa ánh sáng tự nhiên vào sâu bên trong, mà còn tạo hiệu ứng đối lưu không khí tự nhiên, giảm đáng kể nhu cầu sử dụng điều hòa cho thiết kế biệt thự 2 tầng.


Những lưu ý “vàng” khi thiết kế và thi công biệt thự 2 tầng
Yếu tố phong thủy: Hướng nhà, hướng bếp và vị trí phòng thờ cần được tính toán theo cung mệnh của gia chủ trước khi lên bản vẽ. Đây không chỉ là yếu tố tâm linh mà còn liên quan trực tiếp đến việc đón nắng gió, ảnh hưởng thực tế đến chất lượng sống.
Ngân sách dự phòng: Một nguyên tắc kinh nghiệm là luôn để dự phòng 10–15% tổng giá trị hợp đồng cho các phát sinh trong thi công.
Chi phí xây dựng biệt thự 2 tầng thường chia thành 3 hạng mục: phần thô (móng, kết cấu, mái), phần hoàn thiện (cửa, sơn, ốp lát, trần) và nội thất. Việc chia nhỏ ngân sách từng phần giúp gia chủ kiểm soát dòng tiền chủ động hơn, tránh đội vốn không kiểm soát được.
Xem thêm: Chi phí thiết kế biệt thự
Lựa chọn đơn vị thiết kế: Sai lầm phổ biến là gia chủ sao chép hình ảnh trên mạng rồi yêu cầu thợ thi công theo. Thực tế, mỗi lô đất có đặc thù riêng về địa chất, hướng nắng gió, quy hoạch xây dựng địa phương. Hãy yêu cầu đơn vị thiết kế cung cấp đầy đủ hồ sơ kỹ thuật: bản vẽ kiến trúc, kết cấu, điện nước và dự toán chi tiết trước khi khởi công.

Câu hỏi thường gặp về biệt thự 2 tầng
Câu hỏi 1. Chi phí xây biệt thự 2 tầng trọn gói năm 2026 khoảng bao nhiêu tiền 1m²?
Tùy mức độ hoàn thiện, chi phí dao động từ 5,5–9 triệu đồng/m² sàn cho gói cơ bản đến 10–16 triệu đồng/m² cho gói cao cấp. Chưa bao gồm nội thất rời và thiết bị gia dụng.
Câu hỏi 2. Diện tích đất tối thiểu bao nhiêu thì xây được biệt thự 2 tầng đẹp?
Về lý thuyết, diện tích từ 100 m² trở lên là có thể xây được biệt thự 2 tầng đẹp với 3 phòng ngủ. Tuy nhiên, để công trình có sân vườn, garage và không gian thở, diện tích lý tưởng nên từ 150–200 m² trở lên.
Câu hỏi 3. Có nên xây biệt thự 2 tầng mái bằng để lên thêm tầng sau này không?
Hoàn toàn có thể, nhưng cần tính toán kết cấu móng và cột chịu lực từ đầu cho tải trọng tương lai. Nếu thi công tiết kiệm phần kết cấu ở giai đoạn đầu, việc cơi nới thêm sau này sẽ tốn kém và tiềm ẩn nhiều rủi ro an toàn.
Câu hỏi 4. Thời gian xin cấp phép và thi công biệt thự 2 tầng mất bao lâu?
Thời gian xin phép xây dựng thường từ 15–30 ngày làm việc tùy địa phương. Thi công hoàn thiện mất khoảng 6–10 tháng. Tổng thể từ lúc có bản vẽ đến khi dọn vào ở khoảng 8–12 tháng nếu chuẩn bị kỹ lưỡng.
Câu hỏi 5. Làm thế nào để bố trí garage ô tô trong biệt thự 2 tầng mà không ám mùi xăng?
Giải pháp hiệu quả nhất là bố trí hệ thống thông gió cơ học riêng cho garage, đồng thời sử dụng cửa cuốn cách nhiệt kết hợp tường ngăn cách với phòng sinh hoạt. Tuyệt đối không để cửa garage thông trực tiếp vào phòng khách hay bếp.

Biệt thự 2 tầng không chỉ là một công trình nhà ở, mà còn là quyết định đầu tư dài hạn cho chất lượng sống của cả gia đình. Việc chọn đúng mẫu biệt thự 2 tầng phù hợp với diện tích đất, ngân sách và phong cách sống sẽ tạo ra sự khác biệt lớn trong suốt nhiều thập kỷ sử dụng.
Một thiết kế biệt thự 2 tầng thực sự xuất sắc không thể chỉ dựa vào hình thức bên ngoài mà phải là sự kết hợp chặt chẽ giữa thẩm mỹ kiến trúc và mặt bằng biệt thự 2 tầng tối ưu công năng. Villa 365 với đội ngũ kiến trúc sư giàu kinh nghiệm sẵn sàng đồng hành để hiện thực hóa ngôi nhà trong mơ của bạn!
Xem thêm: Báo giá thiết kế thi công biệt thự


