
Trong bối cảnh kiến trúc hiện đại ngày càng đa dạng, mẫu biệt thự 3 tầng Indochine vẫn giữ vững vị thế như một biểu tượng của sự sang trọng và tinh tế. Không chỉ mang giá trị thẩm mỹ vượt thời gian, phong cách Đông Dương còn khéo léo thích nghi với khí hậu và lối sống Việt Nam.
Trong bài viết dưới đây, Villa 365 sẽ giúp bạn khám phá toàn diện từ cảm hứng thiết kế đến bản vẽ, công năng và chi phí thi công thực tế.

Tại sao mẫu biệt thự 3 tầng Indochine lại là biểu tượng của giới thượng lưu?
Giao thoa tinh tế giữa kiến trúc Pháp và bản sắc Á Đông
Phong cách Indochine hay còn gọi là phong cách Đông Dương, là sự kết hợp giữa những giá trị thẩm mỹ truyền thống của Việt Nam và những ảnh hưởng của kiến trúc Pháp (theo tạp chí Elle Decoration, 11/2023).
Những đường nét đối xứng, cột trụ thanh thoát kết hợp cùng họa tiết truyền thống tạo nên một tổng thể vừa sang trọng vừa gần gũi. Chính sự dung hòa này giúp biệt thự kiến trúc Indochine 3 tầng luôn mang giá trị thẩm mỹ bền vững theo thời gian.
Không dừng lại ở hình thức, phong cách này còn thể hiện gu thẩm mỹ tinh tế của gia chủ. Đây là lý do vì sao thiết kế biệt thự 3 tầng phong cách Đông Dương thường được giới thượng lưu lựa chọn như một tuyên ngôn về đẳng cấp sống.
Giải pháp kiến trúc hoàn hảo cho khí hậu nhiệt đới Việt Nam
Một trong những ưu điểm lớn của mẫu biệt thự 3 tầng Indochine là khả năng thích nghi khí hậu. Hệ mái ngói dốc, trần cao và cửa thông gió giúp giảm nhiệt hiệu quả trong điều kiện nóng ẩm. Không gian mở, hành lang rộng và lam chắn nắng giúp tối ưu lưu thông không khí tự nhiên.
Nhờ đó, công năng biệt thự 3 tầng Indochine tối ưu không chỉ đảm bảo tiện nghi mà còn nâng cao chất lượng sống. Đây chính là giải pháp kiến trúc bền vững, tiết kiệm năng lượng và phù hợp với Việt Nam.

Tổng hợp các mẫu thiết kế biệt thự 3 tầng Indochine thịnh hành nhất 2026
Mẫu biệt thự Indochine 3 tầng 5-6 phòng ngủ bề thế
Đây là lựa chọn lý tưởng cho gia đình nhiều thế hệ. Thiết kế chú trọng không gian sinh hoạt chung rộng rãi kết hợp phòng ngủ riêng biệt, đảm bảo sự riêng tư. Biệt thự Indochine 3 tầng dạng này thường sở hữu mặt tiền lớn, tạo cảm giác bề thế và sang trọng.

Ban công rộng với lan can sắt nghệ thuật mang lại nét mềm mại cho tổng thể kiến trúc. Những chi tiết này góp phần tạo nên một ngôi nhà Indochine đẹp đậm chất cổ điển nhưng vẫn gần gũi.

Mẫu biệt thự Indochine 3 tầng có bể bơi nghỉ dưỡng
Phong cách nghỉ dưỡng đang trở thành xu hướng trong mẫu biệt thự 3 tầng Indochine. Hồ bơi kết hợp sân vườn xanh mát giúp công trình giống như resort thu nhỏ. Đây là lựa chọn hoàn hảo cho gia chủ yêu thích sự thư giãn và tiện nghi cao cấp.

Hồ bơi thường được bố trí phía trước hoặc bên hông, tạo điểm nhấn thẩm mỹ nổi bật. Sự kết hợp giữa nước, cây xanh và kiến trúc tạo nên không gian sống lý tưởng.

Biệt thự phong cách Đông Dương 3 tầng chữ L tối ưu diện tích
Thiết kế chữ L giúp tận dụng tối đa diện tích đất và tạo khoảng sân trong thoáng đãng. Không gian được phân chia hợp lý giữa khu sinh hoạt và khu nghỉ ngơi. Đây là giải pháp thông minh trong thiết kế biệt thự 3 tầng phong cách Đông Dương tại đô thị.

Biệt thự Indochine 3 tầng 2 mặt tiền thu hút mọi ánh nhìn
Với lợi thế hai mặt tiền, công trình dễ dàng đón sáng và gió tự nhiên. Hình khối kiến trúc được khai thác tối đa để tạo điểm nhấn thẩm mỹ. Đây là một trong những mẫu kiến trúc Indochine 3 tầng được đánh giá cao về giá trị đầu tư.

Mẫu biệt thự Indochine 2 mặt tiền nổi bật ở mọi góc nhìn (Ảnh: Sưu tầm)
Hình khối kiến trúc được xử lý linh hoạt, tạo cảm giác không gian mở và liên kết tự nhiên. Các mảng tường được nhấn nhá bằng họa tiết kỷ hà đặc trưng của biệt thự Đông Dương.

Mẫu biệt thự 3 tầng 1 tum Đông Dương
Thiết kế thêm tầng tum giúp tăng diện tích sử dụng mà không phá vỡ tổng thể kiến trúc. Tum có thể tận dụng làm phòng thờ hoặc không gian thư giãn. Đây là lựa chọn linh hoạt trong mặt bằng biệt thự 3 tầng Indochine.

Tum thường được xử lý bằng mái dốc hoặc mái bằng kết hợp cây xanh. Điều này tạo nên cảm giác gần gũi thiên nhiên cho tổng thể kiến trúc.

Mẫu biệt thự Indochine 3 tầng 17x14m
Kích thước lớn mang lại không gian sống rộng rãi và đẳng cấp. Công trình thường bố trí sân vườn bao quanh, tạo cảm giác gần gũi thiên nhiên. Đây là mẫu điển hình cho bản vẽ biệt thự 3 tầng Indochine chi tiết.

Mặt tiền rộng được nhấn mạnh bằng hệ cột lớn và mái ngói truyền thống. Đây là đặc trưng nổi bật trong thiết kế biệt thự Indochine cao cấp.

Cảnh quan xung quanh được đầu tư kỹ lưỡng với cây xanh và lối đi lát đá. Tổng thể tạo nên một không gian sống hài hòa giữa kiến trúc và thiên nhiên.

Mẫu biệt thự Indochine 3 tầng mặt tiền 10m
Thiết kế phù hợp với khu đất trung bình nhưng vẫn đảm bảo tính thẩm mỹ. Mặt tiền được xử lý tinh tế với ban công và hệ lam gỗ. Đây là lựa chọn phổ biến trong thiết kế thi công biệt thự 3 tầng Indochine trọn gói.

Màu sắc trung tính kết hợp vật liệu tự nhiên mang lại cảm giác ấm cúng. Đây là lựa chọn phổ biến trong các nhà Indochine đẹp hiện nay.

Mẫu biệt thự Indochine 3 tầng mặt tiền 6m
Dù diện tích nhỏ, mẫu này vẫn đảm bảo đầy đủ công năng. Kiến trúc tập trung vào chiều cao và không gian mở để tạo cảm giác rộng rãi. Đây là giải pháp tối ưu cho đô thị đông đúc.

Mặt tiền sử dụng cửa kính và ban công nhỏ để tăng ánh sáng tự nhiên. Đồng thời, các chi tiết trang trí được tiết chế để tránh rối mắt.

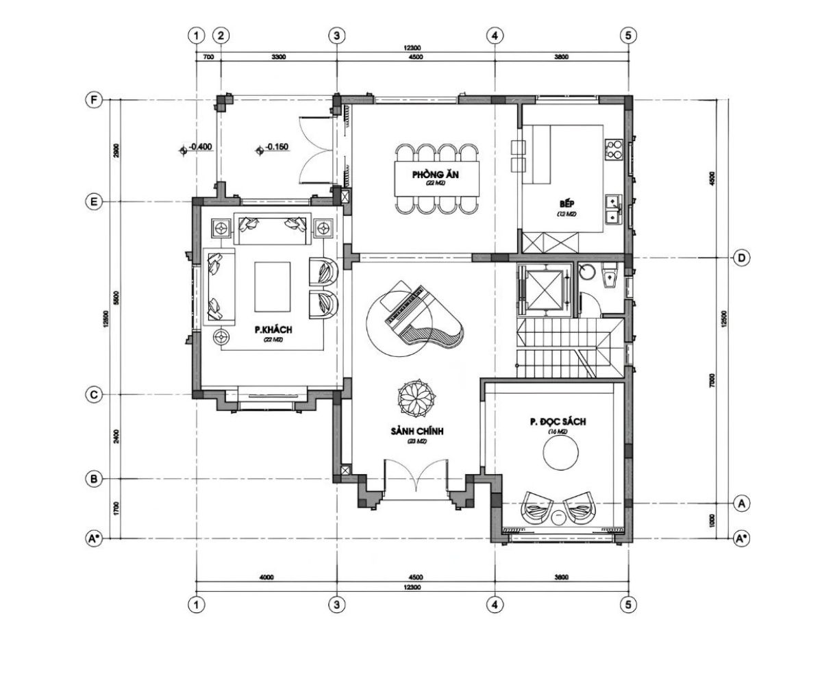
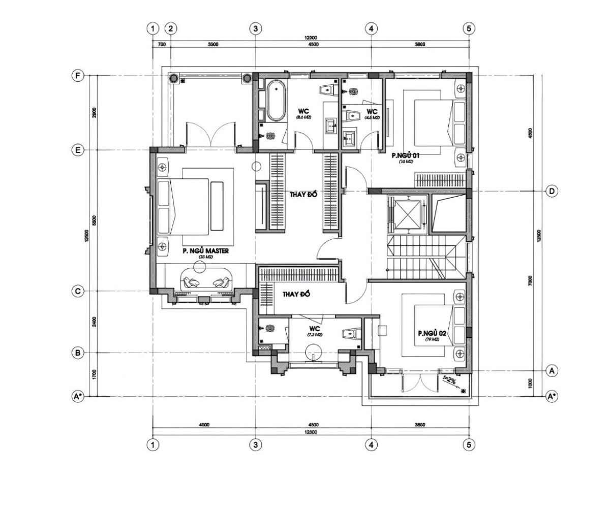
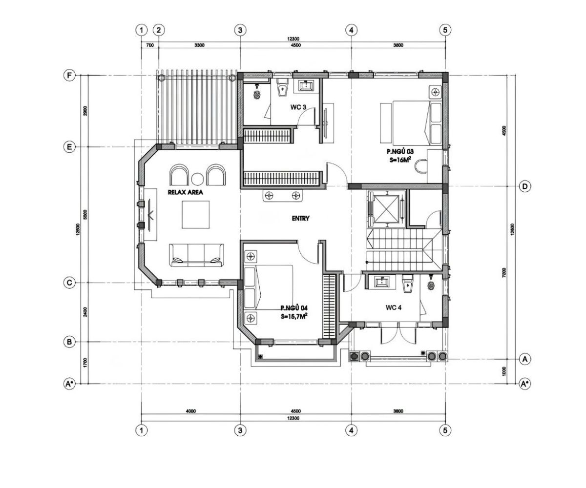
Bản vẽ mặt bằng công năng biệt thự 3 tầng Indochine tối ưu
Tầng 1: Không gian mở kết nối thiên nhiên
Tầng 1 thường bố trí phòng khách, bếp ăn và một phòng ngủ cho người lớn tuổi. Không gian được thiết kế mở, liên kết với sân vườn tạo cảm giác thông thoáng. Đây là nền tảng cho công năng biệt thự 3 tầng Indochine tối ưu.

Tầng 2: Không gian nghỉ ngơi riêng tư
Tầng 2 là khu vực dành cho phòng ngủ master và các phòng ngủ phụ. Ngoài ra còn có phòng sinh hoạt chung để gắn kết gia đình. Mặt bằng biệt thự 3 tầng Indochine tầng này chú trọng sự riêng tư và tiện nghi.

Tầng 3: Không gian tâm linh & Tiện ích
Tầng 3 thường bao gồm phòng thờ, phòng làm việc và khu giặt phơi. Không gian này mang tính linh hoạt và đa năng. Đây là điểm nhấn quan trọng trong bản vẽ biệt thự 3 tầng Indochine chi tiết.

Thiết kế nội thất biệt thự Indochine: Linh hồn của không gian sống
Vật liệu tự nhiên cốt lõi: Gỗ, tre nứa, mây, gạch bông
Nội thất Indochine đề cao vật liệu tự nhiên, tạo cảm giác ấm cúng và gần gũi. Gỗ và mây tre mang lại nét truyền thống, trong khi gạch bông tạo điểm nhấn nghệ thuật. Đây là yếu tố không thể thiếu trong thiết kế biệt thự 3 tầng phong cách Đông Dương.
Họa tiết và màu sắc đặc trưng
Các họa tiết kỷ hà, hoa sen hay hoa văn truyền thống được sử dụng tinh tế. Gam màu vàng kem, nâu gỗ tạo nên không gian sang trọng nhưng ấm áp. Đây chính là “linh hồn” của biệt thự Indochine 3 tầng.

Tích hợp công nghệ Smart Home vào không gian hoài cổ
Dù mang phong cách cổ điển, các công trình vẫn tích hợp công nghệ hiện đại. Hệ thống smart home giúp nâng cao tiện nghi và trải nghiệm sống. Đây là xu hướng tất yếu trong thiết kế thi công biệt thự 3 tầng Indochine trọn gói.
Chi phí thiết kế và thi công biệt thự 3 tầng Indochine
Để giúp gia chủ dễ dàng dự trù ngân sách khi triển khai mẫu biệt thự 3 tầng Indochine, dưới đây là bảng giá tham khảo cho từng hạng mục thiết kế và thi công phổ biến hiện nay
Bảng giá thiết kế kiến trúc & nội thất
| Hạng mục | Đơn giá tham khảo | Nội dung bao gồm | Ghi chú |
| Thiết kế kiến trúc | 120.000 – 200.000đ/m² | Bản vẽ mặt bằng, phối cảnh 3D, hồ sơ kỹ thuật | Phụ thuộc phong cách và độ phức tạp |
| Thiết kế nội thất | 120.000 – 180.000đ/m² | Phối cảnh nội thất, chi tiết vật liệu, đồ nội thất | Tăng theo mức độ cá nhân hóa |
| Thiết kế trọn bộ | 200.000 – 300.000đ/m² | Kiến trúc + nội thất đồng bộ | Tối ưu tổng thể thẩm mỹ và công năng |
Bảng giá trên cho thấy báo giá thiết kế biệt thự 3 tầng Indochine phụ thuộc nhiều vào yêu cầu chi tiết và mức độ đầu tư của gia chủ. Đây là khoản chi phí quan trọng giúp định hình chất lượng và giá trị lâu dài của công trình.
Bảng giá thiết kế thi công trọn gói
| Hạng mục | Mức đầu tư | Đơn giá tham khảo | Nội dung bao gồm | Ghi chú |
| Thi công phần thô | 4.1 – 4.5 triệu/m² | Móng, khung, tường, mái | Phụ thuộc địa chất và quy mô | |
| Thi công hoàn thiện | 2.650.000 – 3.350.00 VNĐ/m² | Sơn, lát sàn, cửa, thiết bị cơ bản | Vật liệu quyết định chi phí | |
| Thiết kế thi công trọn gói | Gói khá | 7 – 8 triệu/m² | Thô + hoàn thiện + nội thất tầm trung | |
| Gói cao cấp | 8 – 9.5 triệu/m² | Thô + hoàn thiện + nội thất cao cấp |
Chi phí thi công biệt thự 3 tầng Indochine trọn gói sẽ thay đổi theo vật liệu, diện tích và vị trí xây dựng. Việc lựa chọn đơn vị thiết kế thi công biệt thự Indochine uy tín không chỉ giúp kiểm soát ngân sách mà còn đảm bảo chất lượng và tiến độ công trình.

Lưu ý khi thi công biệt thự phong cách Đông Dương
Checklist bạn cần chuẩn bị:
- Hoàn thiện đầy đủ giấy phép xây dựng trước khi khởi công để tránh gián đoạn pháp lý trong quá trình thi công. Đây là bước quan trọng giúp công trình diễn ra đúng quy định và đảm bảo tiến độ.
- Lựa chọn nhà thầu có kinh nghiệm thực tế với kiến trúc Indochine 3 tầng nhằm đảm bảo đúng tinh thần thiết kế và kỹ thuật thi công. Đơn vị chuyên môn cao sẽ giúp xử lý chi tiết hoa văn, vật liệu và tỷ lệ kiến trúc chuẩn xác hơn.
- Kiểm soát chặt chẽ vật tư như gỗ tự nhiên, gạch bông, mái ngói để giữ đúng bản sắc Đông Dương. Việc chọn vật liệu phù hợp không chỉ ảnh hưởng đến thẩm mỹ mà còn quyết định độ bền công trình.
Việc chuẩn bị kỹ lưỡng giúp quá trình thiết kế thi công biệt thự 3 tầng Indochine trọn gói diễn ra suôn sẻ. Đồng thời hạn chế phát sinh chi phí và đảm bảo tiến độ.

Câu hỏi thường gặp về biệt thự 3 tầng phong cách Indochine
Hồ sơ thiết kế biệt thự 3 tầng phong cách Indochine gồm những gì?
Hồ sơ thiết kế bao gồm đầy đủ bản vẽ kiến trúc, kết cấu, hệ thống điện nước và phối cảnh 3D trực quan. Đây là cơ sở quan trọng giúp quá trình thi công diễn ra chính xác, hạn chế sai sót và tối ưu chi phí.
Thời gian thi công biệt thự 3 tầng Indochine mất bao lâu?
Thời gian thi công thường dao động từ 5–8 tháng tùy theo quy mô công trình và mức độ chi tiết của thiết kế. Với những dự án lớn hoặc yêu cầu kỹ thuật cao, tiến độ có thể kéo dài hơn để đảm bảo chất lượng.
Chi phí thiết kế biệt thự 3 tầng Indochine được tính như thế nào?
Chi phí thiết kế thường được tính theo diện tích m² hoặc theo gói dịch vụ trọn bộ. Mức giá cụ thể sẽ phụ thuộc vào độ phức tạp của thiết kế, phong cách nội thất và yêu cầu cá nhân hóa của gia chủ.
Thi công biệt thự 3 tầng phong cách Indochine trọn gói bao gồm những hạng mục nào?
Dịch vụ thi công trọn gói bao gồm phần xây dựng thô, hoàn thiện và lắp đặt nội thất theo thiết kế. Ngoài ra, nhiều đơn vị còn cung cấp thêm dịch vụ giám sát công trình và bảo hành để đảm bảo chất lượng lâu dài.
Làm sao để tối ưu công năng cho biệt thự 3 tầng Indochine phù hợp với gia đình Việt?
Để tối ưu công năng, cần bố trí không gian linh hoạt phù hợp với nhu cầu sinh hoạt của từng thành viên. Đồng thời, kết hợp thiết kế mở và hệ thống thông gió tự nhiên sẽ giúp không gian luôn thoáng mát và nâng cao trải nghiệm sống.

Mẫu biệt thự 3 tầng Indochine không chỉ là một xu hướng mà còn là biểu tượng sống đẳng cấp và bền vững. Từ thiết kế, công năng đến chi phí, tất cả đều cần được tính toán kỹ lưỡng để tạo nên một không gian sống hoàn hảo.
Liên hệ ngay Villa 365 để được tư vấn chi tiết và nhận báo giá thiết kế thi công biệt thự trọn gói. Cam kết cung cấp bản vẽ biệt thự 3 tầng Indochine đầy đủ, minh bạch chi phí.




