
Trong thế giới kiến trúc dân dụng cao cấp, phong cách tân cổ điển luôn giữ vững vị thế của một biểu tượng sang trọng trường tồn. Và giữa hàng loạt phương án thiết kế nhà ở hiện nay, thiết kế biệt thự tân cổ điển 2 tầng 1 tum đang nổi lên như một giải pháp tối ưu: vừa đáp ứng tiêu chí thẩm mỹ tinh tế, vừa khai thác triệt để diện tích sử dụng mà vẫn kiểm soát được chi phí đầu tư.
Bài viết dưới đây của Villa 365 sẽ đi sâu vào bản vẽ công năng thực tế từng tầng và cung cấp dự toán chi phí để bạn có cơ sở ra quyết định xây dựng một cách chắc chắn nhất.

Tại sao thiết kế biệt thự tân cổ điển 2 tầng 1 tum lại trở thành xu hướng?
Vẻ đẹp sang trọng, vượt thời gian của kiến trúc tân cổ điển
Sức hút của biệt thự tân cổ điển nằm ở sự giao thoa hoàn hảo giữa hai thế giới: bề thế và uy nghi của kiến trúc cổ điển châu Âu, kết hợp cùng sự tinh gọn, phóng khoáng của ngôn ngữ hiện đại.
Theo nghiên cứu của Đại học Brigham Young, các chi tiết làm nên nét đặc trưng riêng biệt của phong cách này bao gồm: hệ cột trụ theo thức Ionic hoặc Corinthian với đường nét mảnh mai; hệ thống phào chỉ sắc nét bao quanh cửa sổ, mái đua và ô tường; cùng nguyên tắc đối xứng nghiêm ngặt trong bố cục mặt đứng.
Chính sự trau chuốt trong từng chi tiết nhỏ tạo nên vẻ đẹp vượt thời gian cho những mẫu biệt thự tân cổ điển 2 tầng 1 tum được thiết kế bài bản.
Tối ưu hóa không gian sử dụng khéo léo với tầng tum
Nhiều gia chủ còn băn khoăn về khái niệm “tầng tum”. Về bản chất, tầng tum là một tầng bán lửng được xây dựng thu nhỏ hơn so với diện tích sàn các tầng bên dưới, thường chiếm từ 50–75% diện tích mặt bằng. Đây là giải pháp thông minh giúp mở rộng diện tích sinh hoạt mà không vi phạm quy định về chiều cao quy hoạch tại nhiều địa phương.
Tầng tum trong mô hình biệt thự tân cổ điển đẹp 2 tầng 1 tum có thể được sử dụng linh hoạt tùy nhu cầu gia đình: bố trí phòng thờ trang nghiêm theo đúng phong thủy, tạo không gian phòng tập gym riêng tư, làm kho lưu trữ thông minh, hoặc thiết kế khu sân phơi kết hợp tiểu cảnh xanh mát, biến mái nhà thành một “khu vườn trên không” độc đáo.
Bài toán chi phí đầu tư hợp lý cho gia chủ
So với biệt thự 3–4 tầng cùng diện tích đất, mô hình 2 tầng 1 tum mang lại lợi thế chi phí rõ ràng. Khối lượng vật tư xây dựng, số lượng cột dầm chịu lực và đặc biệt là chi phí thi công phào chỉ, phù điêu trang trí – khoản đầu tư lớn trong phong cách tân cổ điển được kiểm soát trong giới hạn hợp lý hơn.
Nhờ đó, gia chủ có thể dành nguồn lực tiết kiệm được để nâng cấp chất lượng vật liệu hoàn thiện, tạo ra một tổng thể cao cấp đồng đều từ ngoài vào trong.

Bộ sưu tập các mẫu biệt thự tân cổ điển 2 tầng 1 tum đỉnh cao
Mẫu thiết kế biệt thự tân cổ điển mái Mansard đẳng cấp
Nếu bạn muốn công trình của mình mang dáng dấp của một tòa lâu đài châu Âu thu nhỏ, mái Mansard là lựa chọn không thể bỏ qua. Với đặc trưng hai mái dốc – phần dưới dốc đứng, phần trên thoải hơn, hệ mái Mansard đậm chất Pháp tạo nên sự đồ sộ, uy nghi cho tổng thể ngôi nhà.
Trong các mẫu biệt thự tân cổ điển 2 tầng 1 tum sử dụng mái Mansard, phương án phối màu ngoại thất được ưa chuộng nhất là tông trắng sứ tinh khiết cho thân nhà, kết hợp mái ngói xanh đen hoặc xám than sang trọng.
Hệ cột trụ Corinthian sơn trắng đồng điệu, phào chỉ vàng nhẹ làm điểm nhấn – tổng thể tạo nên một bức tranh kiến trúc vừa hoành tráng, vừa có chiều sâu thẩm mỹ. Khoảng sân trước được ốp đá tự nhiên, điểm xuyết hàng cột đèn cổ điển hoàn thiện tổng thể biệt thự đẳng cấp.

Mẫu biệt thự tân cổ điển 2 tầng 1 tum mái Thái thanh lịch
Khác với sự hoành tráng của mái Mansard, mái Thái mang đến một vẻ đẹp thanh lịch và thực dụng hơn, đặc biệt phù hợp với điều kiện khí hậu nhiệt đới tại Việt Nam. Mái dốc cao giúp thoát nước mưa nhanh, hạn chế đọng nước gây thấm dột; đồng thời lớp không khí trong khoang mái tạo hiệu ứng cách nhiệt tự nhiên, giúp các phòng bên dưới mát mẻ hơn đáng kể vào mùa hè.
Những mẫu biệt thự tân cổ điển 2 tầng 1 tum mái Thái giật cấp 2–3 lớp đang được giới kiến trúc sư rất ưa chuộng. Hệ cửa sổ gỗ kính lớn đặt đối xứng hai bên cửa chính, kết hợp ban công sắt uốn hoa văn tinh tế và mái đua phào chỉ cầu kỳ, tất cả tạo nên một tổng thể gần gũi, ấm áp nhưng không kém phần quý phái.

Thiết kế biệt thự nhà vườn tân cổ điển gần gũi thiên nhiên
Với những lô đất rộng từ 300m² trở lên, thiết kế biệt thự tân cổ điển 2 tầng 1 tum theo hướng nhà vườn là lựa chọn cực kỳ lý tưởng. Quy hoạch tổng thể thường dành 40–50% diện tích đất cho cảnh quan: hồ cá Koi uốn lượn tự nhiên, chòi nghỉ lát đá cuội, lối đi dạo lát gạch cổ men rêu, vườn cây xanh tạo bóng mát.
Công trình chính được đặt lùi vào phía trong, tạo khoảng lùi sân trước rộng rãi và tầm nhìn thoáng đãng. Hệ thống cửa sổ lớn hai lớp kính được bố trí đón ánh sáng tự nhiên từ hướng Đông và Nam, vừa đảm bảo độ sáng cho nội thất, vừa tạo sự kết nối liền mạch giữa không gian sống bên trong và vẻ đẹp cảnh quan bên ngoài.

Chi tiết bản vẽ biệt thự tân cổ điển 2 tầng 1 tum tối ưu công năng
Đây là phần mà Villa 365 muốn đặc biệt nhấn mạnh: một bản vẽ đẹp chưa đủ, điều quan trọng hơn là, công năng biệt thự tân cổ điển 2 tầng 1 tum phải được thiết kế bài bản, phục vụ đúng nhu cầu sinh hoạt thực tế của từng gia đình.
Bố trí mặt bằng tầng 1: Không gian tiếp khách khang trang
Tầng 1 là bộ mặt của toàn bộ công trình, cần được thiết kế để vừa tiếp đón khách sang trọng, vừa phục vụ nhu cầu sinh hoạt thường nhật. Phương án mặt bằng điển hình được Villa 365 đề xuất bao gồm:
- Sảnh chính và sảnh phụ bố trí ở vị trí dẫn dắt, tạo ấn tượng đầu tiên mạnh mẽ
- Phòng khách rộng (25–35m²) thông thoáng, có tầm nhìn ra sân vườn
- Phòng bếp + phòng ăn liên thông theo dạng mở hoặc ngăn cách bằng vách kính, đảm bảo ánh sáng và thông gió
- 1 phòng ngủ khép kín dành cho ông bà bố trí ở tầng trệt để tiện đi lại, có WC riêng
Về phong thủy, Villa 365 luôn ưu tiên thiết kế sao cho khí trường lưu thông thông suốt: cửa chính không đối thẳng cầu thang, bếp không quay lưng vào bàn ăn, và hành lang được tính toán đủ rộng để không khí và ánh sáng có thể lan tỏa đều khắp không gian tầng 1.

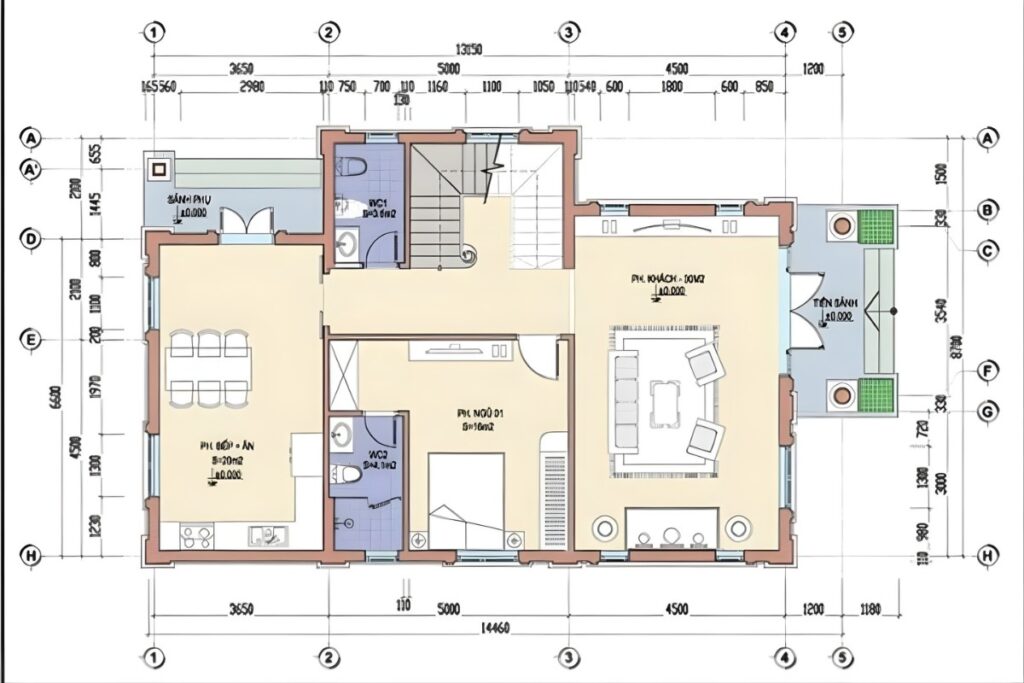
Bản vẽ biệt thự tân cổ điển 2 tầng 1 tum ở tầng 2 được thiết kế tối ưu để mỗi thành viên trong gia đình đều có không gian nghỉ ngơi riêng tư, yên tĩnh và đầy đủ tiện nghi (Ảnh: Sưu tầm)
Bản vẽ tầng 2: Khu vực nghỉ ngơi đề cao sự riêng tư
Tầng 2 là vương quốc riêng tư của các thành viên trong gia đình. Bản vẽ biệt thự tân cổ điển 2 tầng 1 tum tại tầng này thường được bố trí như sau:
- Phòng ngủ Master (20–25m²) với phòng thay đồ riêng (walk-in closet) và WC rộng rãi trang bị bồn tắm đặt góc – một không gian nghỉ ngơi thực sự đẳng cấp dành cho gia chủ
- 2 phòng ngủ dành cho con cái (12–16m²/phòng), mỗi phòng có WC và không gian học tập riêng
- Khu sinh hoạt chung hoặc ban công ngắm cảnh rộng 6–8m² nằm ở vị trí trung tâm tầng 2, là nơi lý tưởng để cả gia đình quây quần đọc sách, uống trà hoặc trò chuyện vào buổi tối
Thiết kế tầng 2 đặc biệt chú trọng sự riêng tư của từng phòng: hành lang được bố trí thẳng, tránh tình trạng các phòng nhìn thẳng vào nhau, đảm bảo không gian nghỉ ngơi yên tĩnh và riêng tư tuyệt đối.

Chi tiết tầng tum: Giải pháp tiện ích đa năng cho gia đình
Tầng tum, dù nhỏ hơn về diện tích, lại đóng vai trò cực kỳ quan trọng trong việc hoàn thiện công năng biệt thự tân cổ điển 2 tầng 1 tum. Theo kinh nghiệm triển khai của Villa 365, tầng tum lý tưởng nên được phân khu như sau:
Phòng thờ được bố trí ở vị trí trung tâm hoặc phía sau tầng tum, quay về hướng Nam hoặc Đông Nam theo nguyên tắc phong thủy. Không gian thờ cúng cần trang nghiêm, yên tĩnh và tách biệt với khu vực sinh hoạt.
Khu giặt phơi được bố trí kín đáo phía sau hoặc hai bên tầng tum, có mái che nhẹ nhưng đảm bảo thông gió. Điều này giúp giữ nguyên vẹn vẻ đẹp của mặt tiền, không bị ảnh hưởng bởi quần áo hay đồ dùng phơi phóng.
Phần sân thượng thoáng còn lại có thể biến thành góc thư giãn ngoài trời: trải sàn gỗ nhựa composite, đặt bộ bàn ghế mây tổng hợp, trồng cây xanh trong chậu và lắp đèn trang trí.

Những lưu ý quan trọng khi xây dựng biệt thự 2 tầng 1 tum tân cổ điển
Để một mẫu biệt thự tân cổ điển 2 tầng 1 tum thực sự đẹp và bền theo thời gian, gia chủ cần lưu ý một số nguyên tắc quan trọng:
Tỷ lệ kiến trúc phải chính xác. Đây là yếu tố sống còn trong phong cách tân cổ điển. Hệ cột trụ phải có tỷ lệ chiều cao so với đường kính đúng chuẩn; phào chỉ, phù điêu phải được tính toán để làm nổi bật công trình, không làm nó trở nên rối rắm hoặc nặng nề.
Vật liệu hoàn thiện quyết định đến vẻ đẹp hoàn thiện cuối cùng. Gia chủ nên ưu tiên đá ốp lát tự nhiên (granite, marble) cho sảnh và tường ngoài; gỗ tự nhiên hoặc gỗ công nghiệp cao cấp cho nội thất; ngói lợp nhập khẩu chất lượng cao cho phần mái. Tiết kiệm ở khâu vật liệu hoàn thiện là cách nhanh nhất để “phá hỏng” một bản thiết kế đẹp.
Chọn đơn vị thiết kế thi công có chuyên môn và kinh nghiệm thực tế về tân cổ điển. Đây là phong cách đòi hỏi kinh nghiệm xử lý chi tiết và hiểu biết sâu về ngôn ngữ kiến trúc cổ điển, không phải đơn vị xây dựng nào cũng có thể làm tốt.
Hãy yêu cầu xem portfolio thực tế, tham khảo ý kiến từ những gia đình đã xây, và ưu tiên các đơn vị cung cấp gói thiết kế thi công trọn gói để kiểm soát chất lượng đồng bộ từ đầu đến cuối.

Câu hỏi thường gặp về mẫu biệt thự tân cổ điển 2 tầng 1 tum
Câu hỏi 1. Xây biệt thự tân cổ điển 2 tầng 1 tum diện tích bao nhiêu là hợp lý nhất?
Diện tích lý tưởng cho mô hình này thường từ 150–300m² đất xây dựng. Với diện tích từ 150–200m², công trình vẫn đảm bảo đầy đủ 3–4 phòng ngủ và công năng cần thiết. Từ 200m² trở lên, gia chủ có thêm không gian cho sân vườn, hồ cá và các tiện ích cảnh quan phong phú hơn.
Câu hỏi 2. Chi phí xây dựng trọn gói cho mẫu nhà này hiện nay khoảng bao nhiêu tiền?
Tại thời điểm 2026, chi phí xây dựng trọn gói (bao gồm phần thô, hoàn thiện và nội thất cơ bản) cho một biệt thự tân cổ điển đẹp 2 tầng 1 tum dao động từ 5,5 đến 12 tỷ đồng tùy diện tích, khu vực và mức độ hoàn thiện. Đơn giá thi công phần thô thường từ 5–7 triệu đồng/m² sàn; hoàn thiện cao cấp có thể lên đến 12–15 triệu đồng/m².
Câu hỏi 3. Có nên đổ mái bằng rồi mới lợp ngói mái Thái cho biệt thự hay không?
Hoàn toàn nên. Việc đổ sàn bê tông cốt thép trước khi lợp ngói giúp tạo nền kết cấu vững chắc, chống thấm tốt và dễ dàng sửa chữa về sau. Đây cũng là phương pháp thi công tiêu chuẩn mà các đơn vị uy tín như Villa 365 đều áp dụng.
Câu hỏi 4. Thời gian thi công hoàn thiện một căn biệt thự 2 tầng 1 tum phong cách này mất bao lâu?
Trung bình từ 8 đến 14 tháng tùy quy mô và mức độ phức tạp của chi tiết kiến trúc. Các công trình có nhiều phào chỉ, phù điêu đắp vẽ cầu kỳ thường cần thêm 1–2 tháng so với công trình tân cổ điển giản lược.
Câu hỏi 5. Quy định về chiều cao khi xây dựng thêm tầng tum là như thế nào?
Theo quy định hiện hành tại Việt Nam, tầng tum thường không được tính vào số tầng chính thức nếu diện tích sàn không vượt quá 50–65% diện tích sàn tầng dưới liền kề (tùy quy định của từng địa phương). Gia chủ cần kiểm tra quy hoạch chi tiết của khu vực và xin phép xây dựng đầy đủ trước khi triển khai. Villa 365 luôn hỗ trợ gia chủ trong toàn bộ quy trình xin phép này.

Thiết kế biệt thự tân cổ điển 2 tầng 1 tum là một giải pháp kiến trúc vượt trội khi biết cách cân bằng ba yếu tố cốt lõi: giá trị thẩm mỹ đẳng cấp, công năng tiện nghi và chi phí đầu tư trong tầm kiểm soát.
Tuy nhiên, để một bản vẽ biệt thự tân cổ điển 2 tầng 1 tum được hiện thực hóa thành công, điều quan trọng nhất vẫn là sự đồng hành của những kiến trúc sư có chuyên môn sâu và hiểu biết thấu đáo về phong cách này.
Villa 365 sẵn sàng tư vấn thi công biệt thự, phù hợp với diện tích đất thực tế và tiềm lực tài chính của từng gia đình. Liên hệ ngay với đội ngũ chuyên gia của chúng tôi để nhận báo giá thiết kế biệt thự miễn phí và bước đầu tiên trên hành trình kiến tạo không gian sống đẳng cấp cho gia đình bạn!




